Hanna Hillen

12 Talbot Street Newry, BT34 1HW

4 Bed Terrace House For Sale

£125,000

Print additional images & map (disable to save ink)

Photo 1 of 12 Talbot Street, Newry

Telephone:

028 3026 9003

View Online:

www.hanna-hillen.co.uk/1045193

Key Information

Address 12 Talbot Street Newry, BT34 1HW
Price Last listed at Guide price £125,000
Style Terrace House
Bedrooms 4
Receptions 1
Heating Oil
EPC Rating E52/C77
Status Sale Agreed

Features

  • Mid Terrace House
  • 1 Reception & 4 Bedrooms
  • Oil Fired Central Heating
  • Double Glazing
  • On Street Parking
  • Yard and Garden Area to Rear

Additional Information

This mid terrace house is located close to the City Centre and convenient to local amenities including shops and schools. Offering generous accommodation and a large garden area to rear, an internal viewing is recomnended.

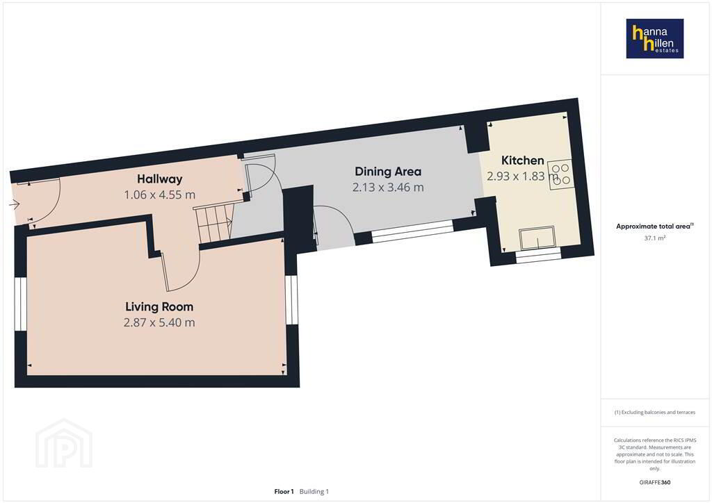
Ground Floor

ENTRANCE HALLWAY:
1.06m x 4.55m (3' 6" x 14' 11")
Radiator. Wooden flooring.
LIVING ROOM:
2.87m x 5.4m (9' 5" x 17' 9")
TV point. Fireplace with tiled surround & hearth. Electric fire. Radiator. Carpeted.
KITCHEN:
2.93m x 1.83m (9' 7" x 6' 0")
High & low level units. Electric hob & oven. Free standing fridge freezer. Stainless steel sink unit Storage cupboard accessed via kitchen. Radiator. Laminate flooring.
DINING AREA:
2.13m x 3.46m (6' 12" x 11' 4")

First Floor

LANDING:
1.78m x 1.27m (5' 10" x 4' 2")
Hotpress.
BEDROOM (1):
4.46m x 2.82m (14' 8" x 9' 3")
To Front: Radiator.
BEDROOM (2):
2.9m x 2.57m (9' 6" x 8' 5")
To Rear: Radiator.
BATHROOM:
2.19m x 2.42m (7' 2" x 7' 11")
White suite coomprising toilet, sink and bathtub. Shower cublcle. Lino flooring.

Second Floor

LANDING:
1.65m x 0.83m (5' 5" x 2' 9")
Access to roof space via drop down ladder.
BEDROOM (3):
4.52m x 2.8m (14' 10" x 9' 2")
To Front: Radiator.
BEDROOM (4):
2.92m x 2.5m (9' 7" x 8' 2")
To Rear: Radiator.

Outside

Concrete Area. outbuilding - 3.18M x 2.62M Gate leading to steps to back garden.

Directions

Travel out of Newry on Trevor Hill, urning right onto Sandys Street at the roundabout. Turn right onto Talbot Street and the property is located on the left hand side.

  • Hanna Hillen Estates

    Hanna Hillen

    028 3026 9003

Photo Gallery

Photo 1 of 12 Talbot Street, Newry Photo 2 of 12 Talbot Street, Newry Photo 3 of 12 Talbot Street, Newry Photo 4 of 12 Talbot Street, Newry Photo 5 of 12 Talbot Street, Newry Photo 6 of 12 Talbot Street, Newry Photo 7 of 12 Talbot Street, Newry Photo 8 of 12 Talbot Street, Newry Photo 9 of 12 Talbot Street, Newry Photo 10 of 12 Talbot Street, Newry Floorplan 1 of 12 Talbot Street, Newry Floorplan 2 of 12 Talbot Street, Newry Floorplan 3 of 12 Talbot Street, Newry Floorplan 4 of 12 Talbot Street, Newry

Location

Visit www.hanna-hillen.co.uk for further details.